
Sanierung Nasszellen, MFH Oberentfelden
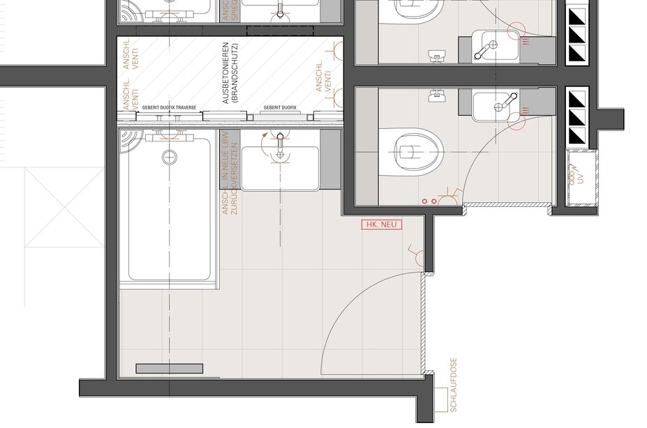
Die Badezimmer mit den entsprechenden Installationen stammen noch aus dem Erstellungsjahr 1962. Sämtliche Schmutzwasserleitungen und Lüftungsschächte waren asbesthaltig und wurden unter Einhaltung der gültigen Schutzmassnahmen vorschriftsmässig rückgebaut.
Die Wohnungen blieben während der gesamten Bauzeit bewohnt. Als Badprovisorium wurden vor dem Haus Badcontainer zugemietet.
Die Strangsanierung umfasste die Erneuerung von allen Schmutzwasser- und Brauchwasser – Leitungen von insgesamt zwölf Badezimmer und zwölf separat WC. Die Ausführung wurde auf zwei Etappen aufgeteilt, wobei die zweite Bauetappe bedingt durch die Corona Pandemie auf Herbst 2020 verschoben wurde.
Gut gebaute Staubwände, welche regemässig gewartet wurden, schützten die Mieter vor übermässigem Baustellenstaub. Zusätzlich wurde die gesamte Baustelle regelmässig durch eine Reinigungsfirma unterhalten.



